Indietro
Cerca
Cerca
Ospiti 2 Ospiti

Appartamento Vacanza con famiglia Kröslin

max  5   Ospiti
92m²  Superficie abitabile
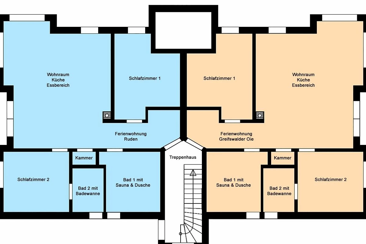
2 camere da letto
2  Bagno
max 5  Ospiti
92m²
2 camere da letto
Condividi
Inserisci le date di viaggio per conoscere i prezzi esatti
Cancellazione gratuita
2 Ospiti

DFV logo
Testato e certificato dall’associazione tedesca delle case vacanze (Deutscher Ferienhausverband e.V.)
Oltre 1.000 recensioni verificate su Trustpilot
Best Price
Prenota senza costi
e commissioni


Dotazione

Animali domestici non ammessi Animali domestici non ammessi
Non fumatori Non fumatori
Wi-Fi Wi-Fi
Televisore Televisore
Terrazza Terrazza
Lavastoviglie Lavastoviglie
Lavatrice Lavatrice
Sauna Sauna
Caminetto Caminetto

Esterni

Barbecue
Posto auto
Terrazza

Bagno

Bagno 2

Bagno con doccia


Cucina

Scomparto congelatore
Lavastoviglie
Frigorifero
Forno a microonde
Forno
Tostapane

Apparecchiature elettriche e accessori

Lenzuola
Televisore
Asciugamani
TV satellitare / via cavo
Lavatrice
Asciugabiancheria
Lettino per bambini
Seggiolone
Wi-Fi
Asciugacapelli

Adatto a

Non fumatori
Ambiente povero di allergeni
Animali domestici non ammessi
Bambini benvenuti

Camere da letto

Totale posti letto: 5

1 Camera doppia
1 Camera tripla

Come arrivare/posizione

Mostra mappa del paese

Come arrivare e distanze

Spiaggia 1 kilometri

1 kilometri

Lago 1 kilometri

1 kilometri

Negozi 1.7 kilometri

1.7 kilometri

Autobus 0.26 kilometri

0.26 kilometri

Stazione 11 kilometri

11 kilometri

Uscita autostrada 38 kilometri

38 kilometri


Offerte per il tempo libero

Bicicletta
Camminate

Linee guida


indicazioni del locatore

termini di cancellazione:

Cancellazione gratuita possibile fino a 90 giorni prima della data di arrivo.


Disponibilità

Si prega di utilizzare il calcolatore di prezzo per scoprire la disponibilità e il prezzo.


41 recensioni

Valutazione complessiva

4,0 di 5
Le valutazioni vengono controllate per verificarne l'autenticità. Per saperne di più, consultate le nostre linee guida per la valutazione.
Le valutazioni vengono controllate per verificarne l'autenticità. Per saperne di più, consultate le nostre linee guida per la valutazione.

Contatto

Azienda HRS Holidays


Ulteriori informazioni

Idee per la vacanza: Vacanza al mare

Numero immobile: 146376

Ultimo aggiornamento: 29.10.2025

Annuncio online dal: 7 anni, 3 mesi

URL: https://www.resido.it/146376.htm


«Appartamento Vacanza con famiglia Kröslin» ottiene dagli ospiti una valutazione pari a 4 (scala di valutazione: da 1 a 5) con 41 recensioni fornite.

Elimina
Ai preferiti
Inserisci le date di viaggio per conoscere i prezzi esatti
Cancellazione gratuita
2 Ospiti

DFV logo
Testato e certificato dall’associazione tedesca delle case vacanze (Deutscher Ferienhausverband e.V.)
Oltre 1.000 recensioni verificate su Trustpilot
Best Price
Prenota senza costi
e commissioni
Mostra dati di contatto del locatore
Hai domande su questo alloggio?
mandare messaggio
Chat
Salvato in
Eliminato da