Fortezza/castello Villaggi e club vacanze Poseritz
e commissioni
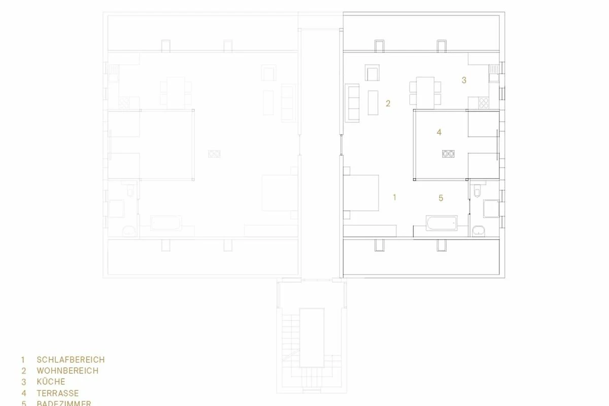
Dotazione
Esterni
Bagno
Bagno 1
Bagno con doccia
Cucina
Apparecchiature elettriche e accessori
Adatto a
Camere da letto
Totale posti letto: 5
Come arrivare/posizione


Come arrivare e distanze
Spiaggia 28 kilometri
28 kilometri
Lago 10 kilometri
10 kilometri
Stazione 18 kilometri
18 kilometri
Uscita autostrada 15 kilometri
15 kilometri
Offerte per il tempo libero
Linee guida
Disponibilità
Si prega di utilizzare il calcolatore di prezzo per scoprire la disponibilità e il prezzo.
disponibile occupato Data di arrivo e di partenza
Ultimo aggiornamento: 04.10.2025
La Fortezza/castello ha nessuna recensione
Contatto
Azienda HRS Holidays

Altre strutture offerte da HRS Holidays
Altri alloggi che potrebbero piacerti
Ulteriori informazioni
Case vacanze e appartamenti per le vacanze in Germania
Case vacanze e appartamenti per le vacanze in Meclemburgo-Pomerania Occidentale
Case vacanze e appartamenti per le vacanze sul Mar Baltico
Case vacanze e appartamenti per le vacanze a Rügen
Idee per la vacanza: Vacanza con il cane
Numero immobile: 150626
Ultimo aggiornamento: 04.10.2025
Annuncio online dal: 7 anni, 2 mesi
URL: https://www.resido.it/150626.htm
e commissioni
